IL LOFT AZZURRO - Studio di Architettura
Dott. Arch. Simona Bianchi | Dott. Arch. Cesare Bianchi
Via F.lli Soldà, 7 - Pogno
Novara 28076 - Italia
C.F. / P.Iva: 01724530033
archissimo@libero.it
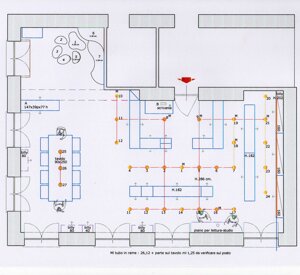
Sala lettura San Maurizio D'opaglio 2016
Archissimo @ 2025 All Right reserved
Anno di realizzazione : 2016
Committente: Gruppo San Maurizio Giovane
Progetto restyling: Dott.Arch.Simona Bianchi
Realizzazione grafica tavolo: Konkreta grafica Borgomanero
Powered by Logos Engineering














